Omschrijving(english below)

English text below

TE KOOP: RECENT VOLLEDIG GERENOVEERDE COMMERCIËLE RUIMTE, ZEER GUNSTIG GELEGEN NABIJ WINKELGEBIED DE KEMPENAER, ENERGIEZUINIG A++, ZO TE BETREKKEN.

OMSCHRIJVING
Op een toplocatie in hartje Oud-Oegstgeest bieden wij te koop aan deze unieke volledig gerenoveerde bedrijfsruimte, zeer geschikt voor kantoor, praktijk of kleinschalige speciaalzaak. Deze instapklare locatie, direct om de hoek van de geliefde De Kempenaerstraat, combineert moderne uitstraling met optimale zichtbaarheid en bereikbaarheid. Een bijzonder object voor creatieve ondernemers!

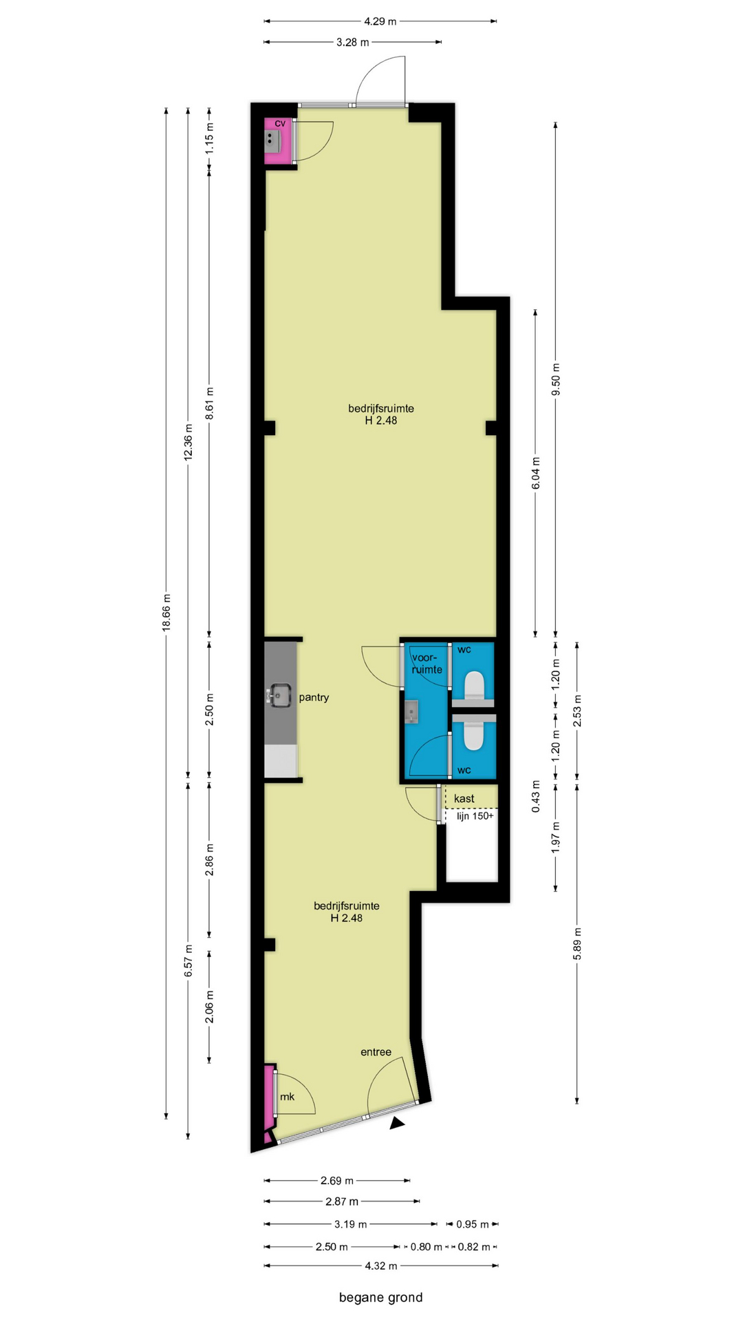
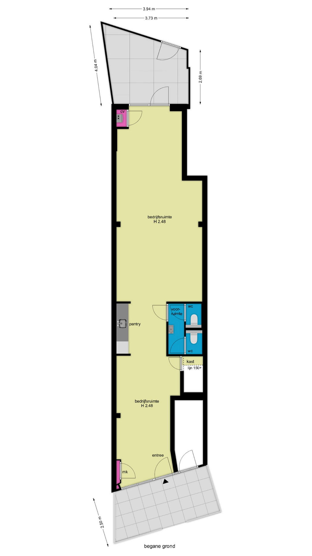
Het pand is gelegen op de begane grond en beschikt onder meer over twee open ruimtes, een luxe kitchenette, een moderne toiletunit en een kleine besloten achtertuin.

Via de gezamenlijke voortuin bereikt u de entree die een volledige glazen pui heeft welke is voorzien van een loopdeur. Bij binnenkomst valt direct de smaakvolle en kwalitatief hoogwaardige afwerking op en het open karakter van de ruimtes, welke zijn voorzien van functionele en sfeervolle verlichting.
De eerste open ruimte, voorzien van veel lichtinval, zou u bijvoorbeeld als ontvangst- of wachtruimte kunnen gebruiken. In het midden bevindt zich de luxe kitchenette, voorzien van een ruime koelkast, een vaatwasmachine, een spoelbak en voldoende kastruimte. Tegenover de keuken treft u het sanitair gedeelte met twee aparte toiletten die luxe zijn afgewerkt. Aan de achterzijde bevindt zich nog een zeer grote ruimte die naar eigen idee gemakkelijk in meerdere praktische kantoor- of praktijkunits is in te delen. De achtertuin is bereikbaar door middel van openslaande deuren alwaar er tijdens de lunch even van het zonnetje genoten kan worden. Ook kunt u in de achtertuin uw fiets stallen, welke u via de afgesloten poort vanaf de Kempenaerstraat kunt bereiken. Een stabiele en snelle internetverbinding is mogelijk door de beschikbaarheid van voldoende wandcontactdozen inclusief vaste utp-aansluitingen en de aanwezigheid van een glasvezelaansluiting.

Kortom: representatief en instapklaar, een unieke kans om uw onderneming te laten groeien in een dynamische en populaire omgeving!

AFMETINGEN
Bruto vloeroppervlakte ca. 75 m2
Verhuurbare vloeroppervlakte ca. 67 m2
Frontbreedte ca. 2,80 meter

BESTEMMING
Gemengd-1 conform bestemmingsplan “Oranje Nassau”.
Ingevolge de splitsingsakte is geen horeca toegestaan.
Voor bestemmingsplandetails verwijzen wij u naar de gemeente Oegstgeest.

PARKEREN
Er is voldoende gratis parkeergelegenheid in de directe omgeving, deels een blauwe zone.

ENERGIELABEL
Het object beschikt over energielabel A++ (zeer energiezuinig).

SERVICEKOSTEN
Actieve Vereniging van Eigenaars, bijdrage € 120,- per maand.

OMZETBELASTING
Het betreft hier een met BTW belaste verkoop.

AANVAARDING
In overleg, gunning door verkoper.

BIJZONDERHEDEN
- Oorspronkelijk bouwjaar ca. 1933
- Recent volledig gerenoveerd, direct te betrekken
- VVO (verhuurbaar vloeroppervlak) ca. 67 m2
- Energielabel A++ (zeer energiezuinig)
- Volledig geïsoleerd, HR+++ beglazing
- CV-ketel Remeha (2024)
- Kleinschalige VVE met een maandelijkse bijdrage van € 120,-
- Volgens de splitsingsakte is geen horeca toegestaan
- De oppervlakte is gemeten volgens NEN 2580

KOOPAKTE
Niet-zelfbewoningsclausule is van toepassing.

Deze vrijblijvende objectinformatie is met de meeste zorg samengesteld, maar voor de juistheid daarvan kunnen wij geen aansprakelijkheid aanvaarden. Ook kan aan de vermelde gegevens geen enkel recht worden ontleend. Alle informatie is enkel en alleen bedoeld voor de presentatie van het object en niet meer dan een uitnodiging tot het doen van een bod. Eventueel bijgevoegde plattegronden zijn slechts indicatief.

Interesse gewekt? Neemt u dan contact op met ons kantoor voor een bezichtigingsafspraak.
----------------------------------------------------------------
FOR SALE: RECENTLY FULLY RENOVATED COMMERCIAL SPACE, CONVENIENTLY LOCATED NEAR THE DE KEMPENAER SHOPPING AREA, ENERGY-EFFICIENT A++, READY TO MOVE IN.

DESCRIPTION
In a prime location in the heart of Oud-Oegstgeest, we offer for sale this unique, fully renovated commercial space, ideal for an office, practice, or small-scale specialty store. This move-in ready location, just around the corner from the popular De Kempenaerstraat, combines a modern appearance with optimal visibility and accessibility. A unique property for creative entrepreneurs!

The property is located on the ground floor and features two open-plan spaces, a luxury kitchenette, a modern restroom, and a small, private back garden.

Through the shared front garden, you reach the entrance, which features a full glass façade with a pedestrian door. Upon entering, you'll immediately notice the tasteful and high-quality finishes and the open character of the spaces, which are equipped with functional and atmospheric lighting. The first open space, bathed in natural light, could be used as a reception or waiting area, for example. In the center is the luxurious kitchenette, equipped with a large refrigerator, dishwasher, sink, and ample cupboard space. Opposite the kitchen, you'll find the bathroom with two separate toilets, each luxuriously finished. At the rear is another very large room that can easily be divided into several practical office or practice units, according to your own preferences. The back garden is accessible through French doors, where you can enjoy the sunshine during lunch. You can also park your bicycle in the back garden, which is accessible via the locked gate from Kempenaerstraat. A stable and fast internet connection is provided by the availability of sufficient wall sockets, including fixed UTP connections, and a fiber optic connection.

In short: a stylish and move-in ready property, a unique opportunity to grow your business in a dynamic and popular environment!

DIMENSIONS
Gross floor area approx. 75 m²
Rentable floor area approx. 67 m²
Front width approx. 2.80 meters

ZONING
Mixed-1 in accordance with the "Oranje Nassau" zoning plan.
According to the deed of division, no catering establishments are permitted.
For zoning plan details, please contact the municipality of Oegstgeest.

PARKING
There is ample free parking in the immediate vicinity, partly within a blue zone.

ENERGY CHARACTERISTICS
The property has an energy label A++ (very energy-efficient).

SERVICE CHARGES
Active Owners' Association, contribution €120 per month.

SALES TAX
This is a VAT-taxable sale.

ACCEPTANCE
Upon consultation, award by the seller.

SPECIAL FEATURES
- Originally built around 1933
- Recently fully renovated, ready to move into
- VVO (rentable floor area) approx. 67 m²
- Energy label A++ (very energy-efficient)
- Fully insulated, HR+++ glazing
- Remeha central heating boiler (2024)
- Small-scale homeowners' association (VVE) with a monthly fee of €120
- According to the deed of division, no catering is permitted
- The surface area has been measured according to NEN 2580
- Project notary: Van Dijk Notarissen in Noordwijk

PURCHASE DEED
A non-occupancy clause applies.

This non-binding property information has been compiled with the utmost care, but we cannot accept any liability for its accuracy. Furthermore, no rights can be derived from the information provided. All information is intended solely for the presentation of the property and is no more than an invitation to submit an offer. Any included floor plans are for illustrative purposes only.

Interested? Please contact our office to schedule a viewing.

Verkocht